Jordi Marcè
cronología
- 1 vivienda. Altafulla
- 1 vivienda. Campins
- 1 vivienda. Castellterçol
- 1 vivienda. Corçà
- 1 vivienda. Esplugues
- 1 vivienda. Ferran
- 1 vivienda. Foixà
- 1 vivienda. Fornells
- 1 vivienda. La Pobla
- 1 vivienda. Lliçà d'Amunt
- 1 vivienda. Lliçà d'Amunt
- 1 vivienda. Teià
- 1 vivienda. Teià II
- 1 vivienda. Tortosa
- 1 vivienda. Ullastrell
- 1 vivienda. Vallromanes
- 1 vivienda. Vallvidrera
- Vivienda en Boulakroud.Algeria
- 1 Vivienda. L'Escala
- 1 Vivienda. Lleida
- 1 vivienda. Matosinhos
- 9 Viviendas
- Alt Penedès 25 Viviendas
- Bonanova 7 Viviendas.
- Can Munt 8 viviendas.
- Cap Martinet 8 viviendas.
- Casa modular: viviendas Golf Barcelona / Masía Bach
- Casa plana: viviendas Golf Barcelona / Masía Bach
- Collsabadell - Llinars del Vallès 9 viviendas
- Gerona 11 Viviendas
- Gerona 11 Viviendas
- Golf Peralada 5 Viviendas
- Hotel. ibiza
- Ibiza 32 viviendas.
- L'Ametlla de Mar. 27 Viviendas.
- La Floresta 3 viviendas.
- Lleida 5 viviendas unifamiliares
- Llinars del Vallés 9 Viviendas
- Masía Bach Fase 1: 4 viviendas
- Masía Bach Fase 2: 5 viviendas
- Masía Bach Fase 3: 3 viviendas
- Masía Bach Fase 4: 4 viviendas
- Málaga 29 Viviendas
- PAU 16 Calonge Viviendas
- Peralada 4 Viviendas
- Peralada – estudio previo 5 viviendas
- Riera de Gaià 2 viviendas.
- Tarragona estudio previo 2 viviendas
- Teià Ecoviviendas
- Vivienda en Peralada
- Vivienda. Gerona
- Viviendas PAU-19 Conjunto
- Viviendas PAU-19 Tipologías
Conjunto residencial: 4 viviendas unifamiliares en la urbanización Masía Bach - Golf Barcelona de Sant Esteve Sesrovires. Proyecto básico y de ejecución – Fase 1
La urbanización del campo de golf que rodea la Masía Bach es un lugar privilegiado por la rápida conexión vial con la metrópolis, por la cercanía de otras grandes infraestructuras y por las vistas al skyline de Montserrat.
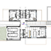
Las 4 viviendas de la fase 1 se organizan por zonas funcionales (uso de día / noche / aparcamiento doble) con un eje central de composición, que corresponde con el eje longitudinal de la parcela y con la dirección de las vistas directas al campo de golf.
Como criterio estético, se ha buscado conseguir el efecto “Wow” en la entrada, mediante un espacio recibidor – distribuidor que conecta todas las zonas funcionales y al mismo tiempo tiene un gran ventanal / balconera justo delante de la puerta de acceso, que nos permite ver el campo de golf a través de toda la planta baja.
En la planta superior, las habitaciones se orientan para aprovechar las vistas al campo de golf y a Montserrat.
Las 4 viviendas de la fase 1 se organizan por zonas funcionales (uso de día / noche / aparcamiento doble) con un eje central de composición, que corresponde con el eje longitudinal de la parcela y con la dirección de las vistas directas al campo de golf.
Como criterio estético, se ha buscado conseguir el efecto “Wow” en la entrada, mediante un espacio recibidor – distribuidor que conecta todas las zonas funcionales y al mismo tiempo tiene un gran ventanal / balconera justo delante de la puerta de acceso, que nos permite ver el campo de golf a través de toda la planta baja.
En la planta superior, las habitaciones se orientan para aprovechar las vistas al campo de golf y a Montserrat.
Situación: Sant Esteve Sesrovires, Barcelona
Año: 2024
Superficie: 1.000m2